REQUALIFICAÇÃO DA IGREJA PAROQUIAL DE FARIA - BARCELOS
Reabilitação de Igreja
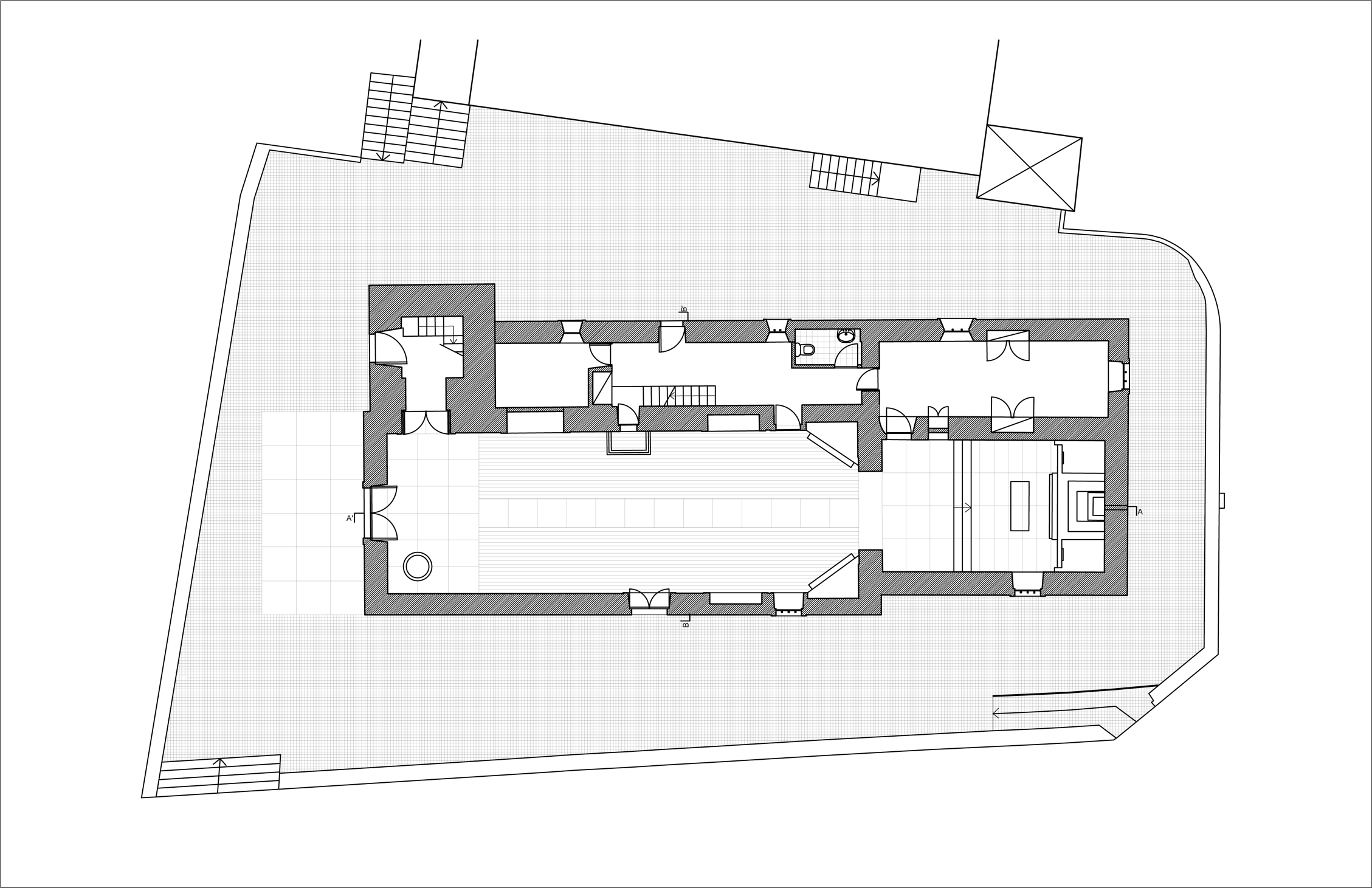
Igreja do séc. XVII (1692).
Renovação do telhado (nova estrutura de madeira, isolamento térmico, subtelha e novas telhas e caleiras).
No interior, renovação dos tetos de gesso em abóbada e colocação da iluminação. Paredes interiores rebocadas a gesso e lambrins de granito. Pavimento da nave e capela-mor em soalho de riga.
Renovação de todas as portas e janelas exteriores e interiores da igreja e sacristia. Construção de um sanitário na sacristia. Remoção de azulejos recentes da torre sineira e aplicação de reboco pintado de branco.
Restauro integral, a ouro, das valiosas talhas barrocas. Foram encontrados frescos atrás dos altares laterais da nave principal que se julga serem de um período compreendido entre 1503 e 1505, que representam Sta. Catarina de Alexandria e S. Sebastião, e cuja Diocese de Braga aconselhou a serem mantidos sem intervenção.
No adro da igreja não houve intervenção por falta de financiamento.










